دارد
2900فوت مربع
پیش فروش - 31 دسامبر 2029
اقساطی، به صورت ۶۰/۴۰
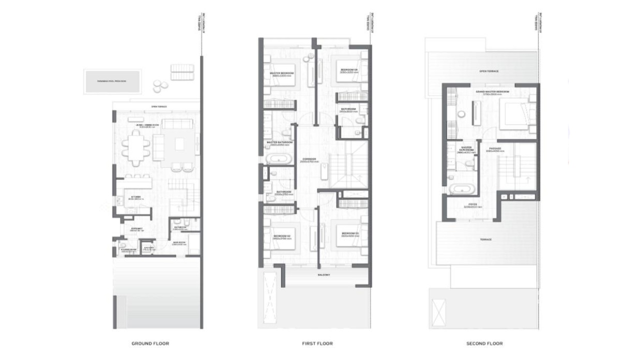
نوع ملک Attached Villa (ویلای متصل/دوقلو) است. این پروژه شامل ویلاهای ۴ و ۵ خوابه است.
• نوع واحد : ۵ خوابه (5BR).
• متراژ بنا: مساحت قابل فروش (Sellable Area) واحد نمونه ۴۰۱۱.۲۸ فوت مربع است.
• متراژ زمین: مساحت زمین (Plot Area) واحد نمونه ۲۸۲۵.۵۳ فوت مربع است.
• طبقات: ویلاها سه طبقه (همکف، اول و دوم) هستند و شامل اتاق خواب اصلی بزرگ، تراسهای روباز و بالکنهای متعدد میباشند.
این ویلاها دسترسی به امکانات درجه یک جامعه جمیرا گلف استیتز را فراهم میکنند که شامل دو زمین گلف قهرمانی (Earth & Fire)، باشگاه گلف مجلل (Clubhouse)، آکادمی تنیس، اسپا و مرکز سلامتی، استخرهای شنا و فضاهای سبز و پارکها است.
ویژگیهای خاص پروژه
نحوه پرداخت:
نحوه پرداخت به صورت اقساطی است. طرح پرداخت مورد اشاره در فایل مرتبط با پیشرفت ساخت است:
• پیشپرداخت (DP): ۲۰٪ در زمان رزرو (فوری).
• قسط اول: ۱۰٪ شش ماه پس از رزرو.
• قسط دوم: ۱۰٪ در زمان تکمیل سقف طبقه همکف.
• طرحهای پرداخت متداول برای این پروژه در منابع رسمی اغلب به صورت ۶۰/۴۰ (در حین ساخت/در زمان تحویل)
قیمت شروع برای ویلاهای ۴ خوابه در این مجموعه از حدود ۶ میلیون درهم آغاز میشود.

971525886009+
از نظر من، املاک فقط خرید و فروش نیست؛ بلکه یک سرمایهگذاری استراتژیک برای آینده شماست. به همین دلیل، من متعهد هستم که به مشتریانم کمک کنم تا بهترین فرصتها را که ترکیبی از کیفیت، سبک زندگی و بازده سرمایهگذاری هستند، پیدا کنند.
جستجوی محبوب
دسترسی سریع